Description
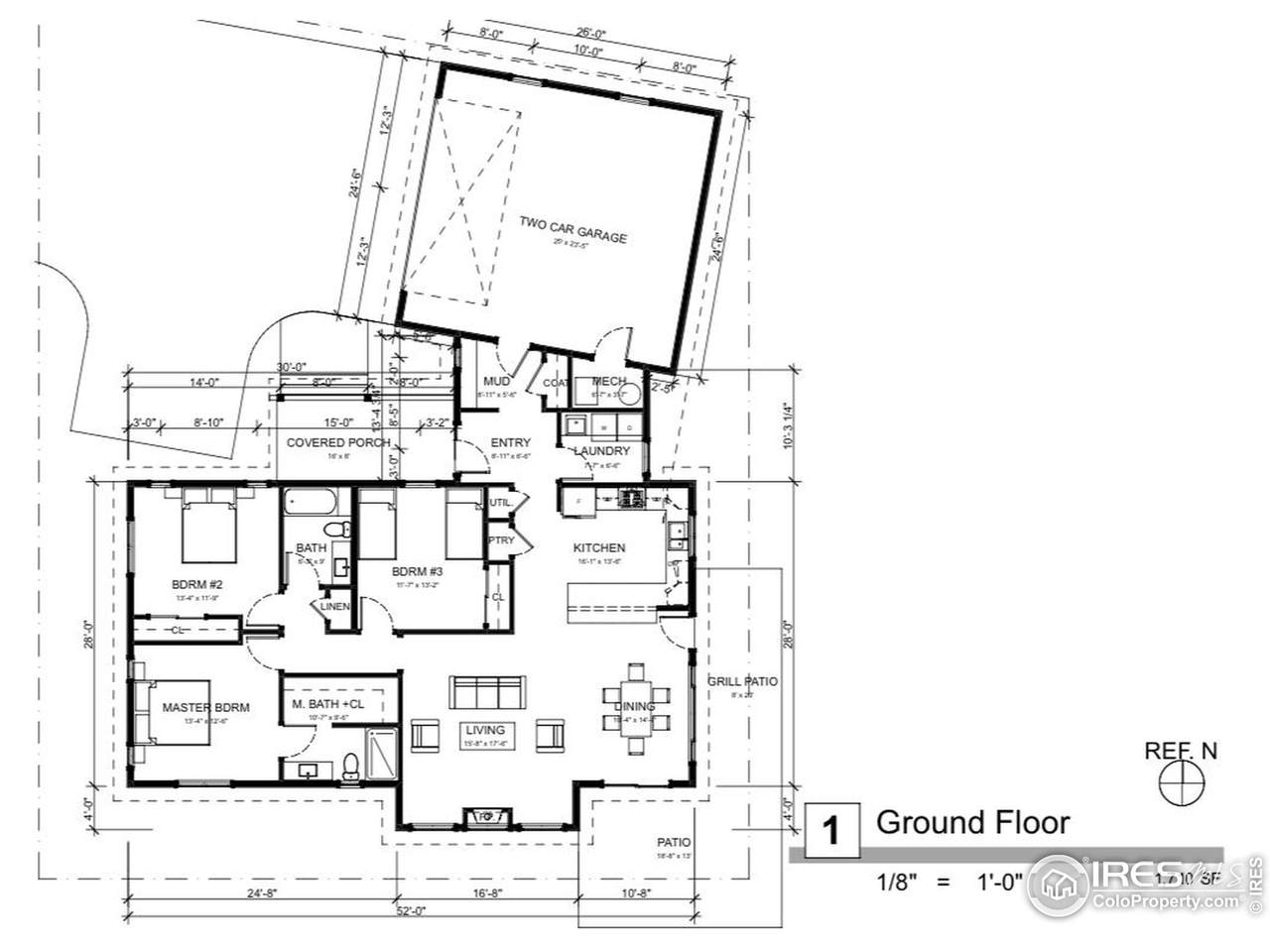
**Dream Home Opportunity in Estes Park** Welcome to your future mountain retreat on Lot 2, perfectly located in the serene north end of Estes Park in the Wildfire Homes Subdivision. This exclusive opportunity allows you to design your dream home using our customizable plans and work with the designer to select finishes to your liking. Located in a tranquil setting, this property promises the best of mountain living with the convenience of modern amenities. Imagine waking up to breathtaking mountain views, enjoying the peace and quiet of nature, yet being just moments away from local shops, restaurants, and outdoor adventures. Our plans include stunning finish options to create a luxurious and comfortable home. Choose from high-end materials such as quartz countertops, rich hardwood floors, and elegant soft-close cabinetry. With top-quality construction, your new home will offer both beauty and durability. Pricing will vary depending on your preferences, selections and square footage. * Builder and Bank of Estes Park are offering buyers an incentive to cover select closing costs, saving thousands! Fences allowed with HOA approval. Plans and renderings are conceptual, buyers may pick their floor plan and finishes to customize their dream home with Wildfire Homes.
-
3BEDS
-
0.21ACRES
-
2BATHS
-
01/2 BATHS
-
1,710SQFT
-
$575$/SQFT
School Information
Description
**Dream Home Opportunity in Estes Park** Welcome to your future mountain retreat on Lot 2, perfectly located in the serene north end of Estes Park in the Wildfire Homes Subdivision. This exclusive opportunity allows you to design your dream home using our customizable plans and work with the designer to select finishes to your liking. Located in a tranquil setting, this property promises the best of mountain living with the convenience of modern amenities. Imagine waking up to breathtaking mountain views, enjoying the peace and quiet of nature, yet being just moments away from local shops, restaurants, and outdoor adventures. Our plans include stunning finish options to create a luxurious and comfortable home. Choose from high-end materials such as quartz countertops, rich hardwood floors, and elegant soft-close cabinetry. With top-quality construction, your new home will offer both beauty and durability. Pricing will vary depending on your preferences, selections and square footage. * Builder and Bank of Estes Park are offering buyers an incentive to cover select closing costs, saving thousands! Fences allowed with HOA approval. Plans and renderings are conceptual, buyers may pick their floor plan and finishes to customize their dream home with Wildfire Homes.
© 2025 Information and Real Estate Services, LLC. IDX information is provided exclusively for consumers' personal, non-commercial use and may not be used for any purpose other than to identify prospective properties consumers may be interested in purchasing. Information is deemed reliable but is not guaranteed accurate by the MLS or The Wild Realty Group. Data last updated: 2025-12-15T23:43:07.613.
Information source: Information and Real Estate Services, LLC. Provided for limited non-commercial use only under IRES Rules © Copyright IRES.
